• Участок на застройку продается Cala Vinyas, Майорка, Испания
    995 000 EUR

ориентация South South Вид Обзорный Горы Обзорный Горы 

Очаровательный участок с лицензией и проектом виллы в Кала Виньяс

  • V1042SP
  • Продажа
  • Участок на застройку

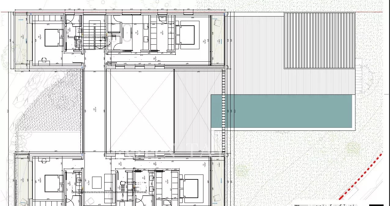
Этот большой городской участок площадью 1600 метров расположен всего в 2 минутах ходьбы от изысканных белых песчаных пляжей Кала Виньяс и всего в 5 минутах езды от живописной бухты Кап Фалькó. Благодаря наклону участка и его юго-западной ориентации, из окон открывается беспрепятственный вид на рощу и бухту Кала Виньяс.
Этот уникальный проект имеет утвержденную лицензию на строительство виллы площадью 480 квадратных метров, был разработан известным местным архитектором и предлагает семейную виллу для наслаждения отдыхом или в качестве первой резиденции.
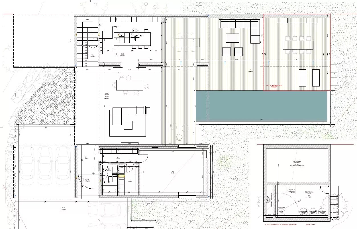
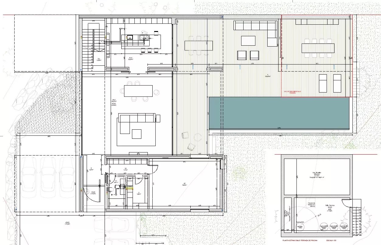
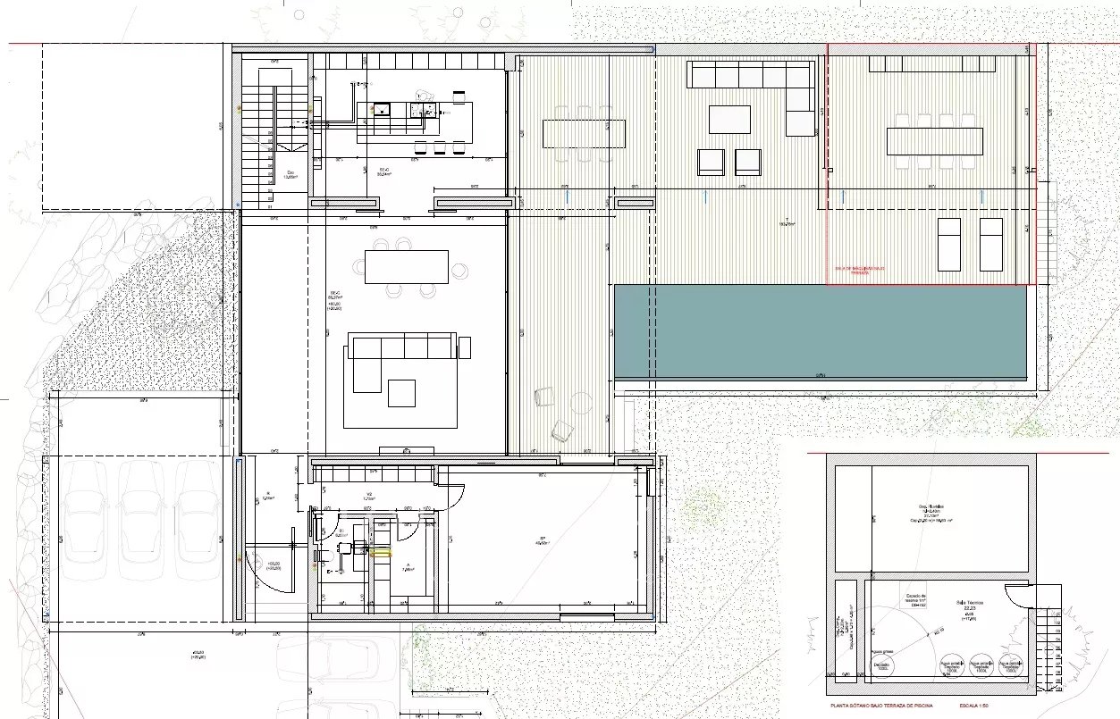
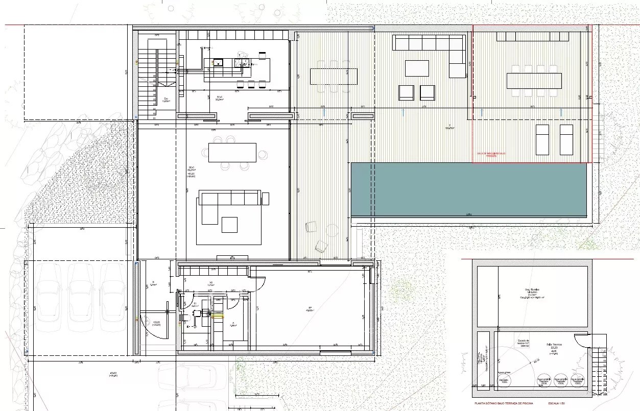
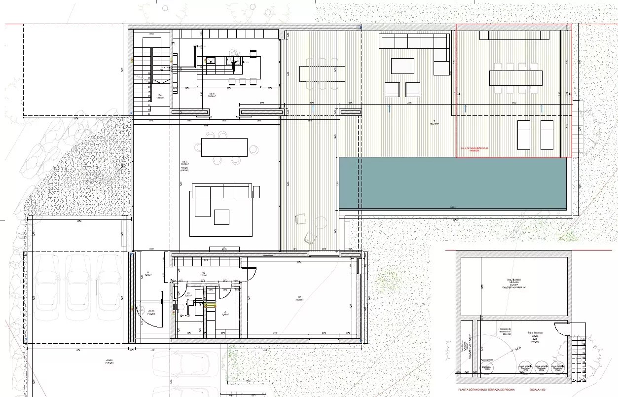
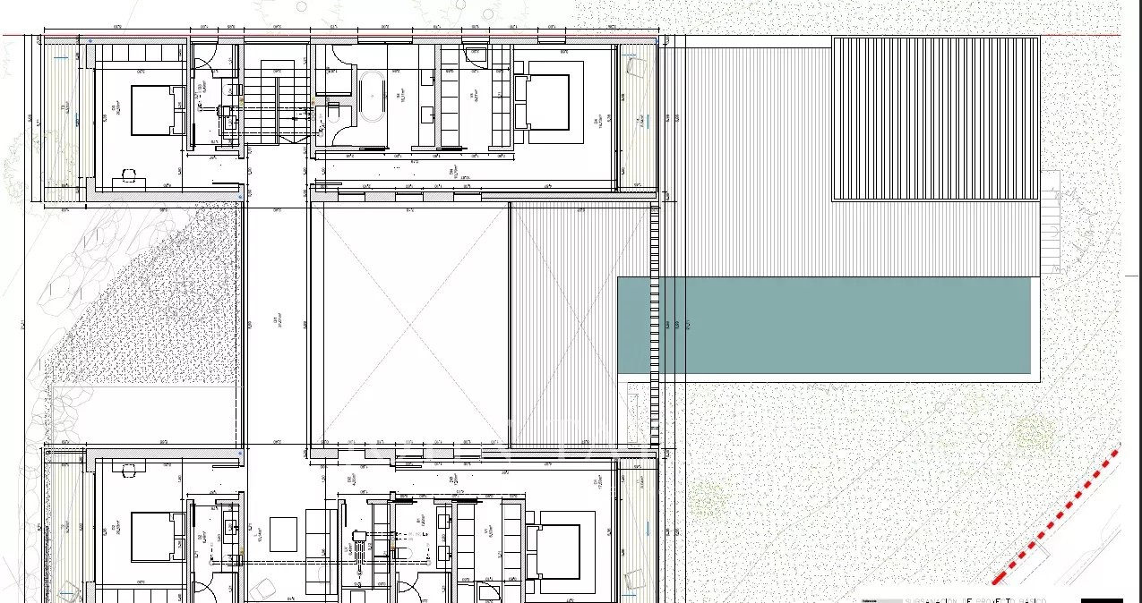
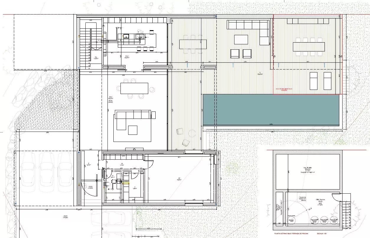
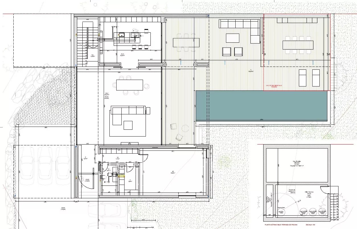
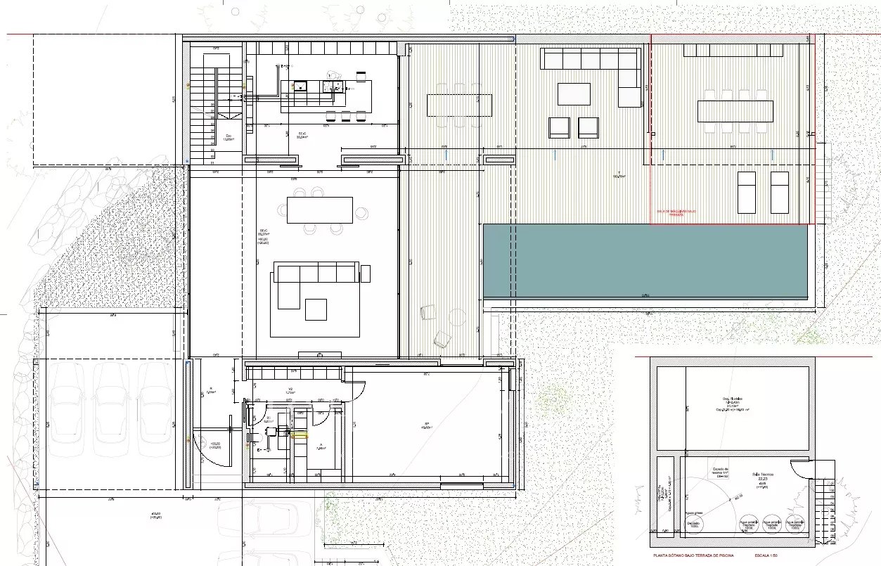
Проект виллы состоит из 2 этажей, на первом этаже находится кухня с центральным островом, просторная гостиная-столовая с большими окнами, которые выходят прямо на террасу и в сад. На первом этаже есть дополнительная комната, которая может быть использована как кабинет или дополнительная спальня. На террасе есть крытая веранда рядом с 15-метровым бассейном.
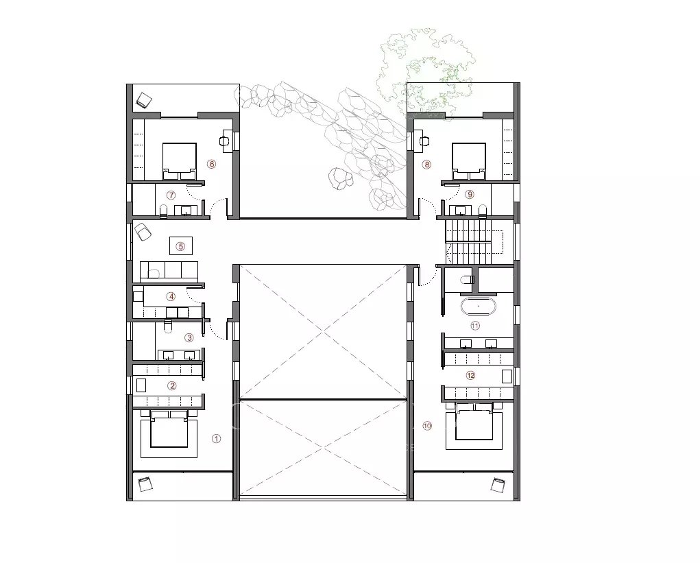
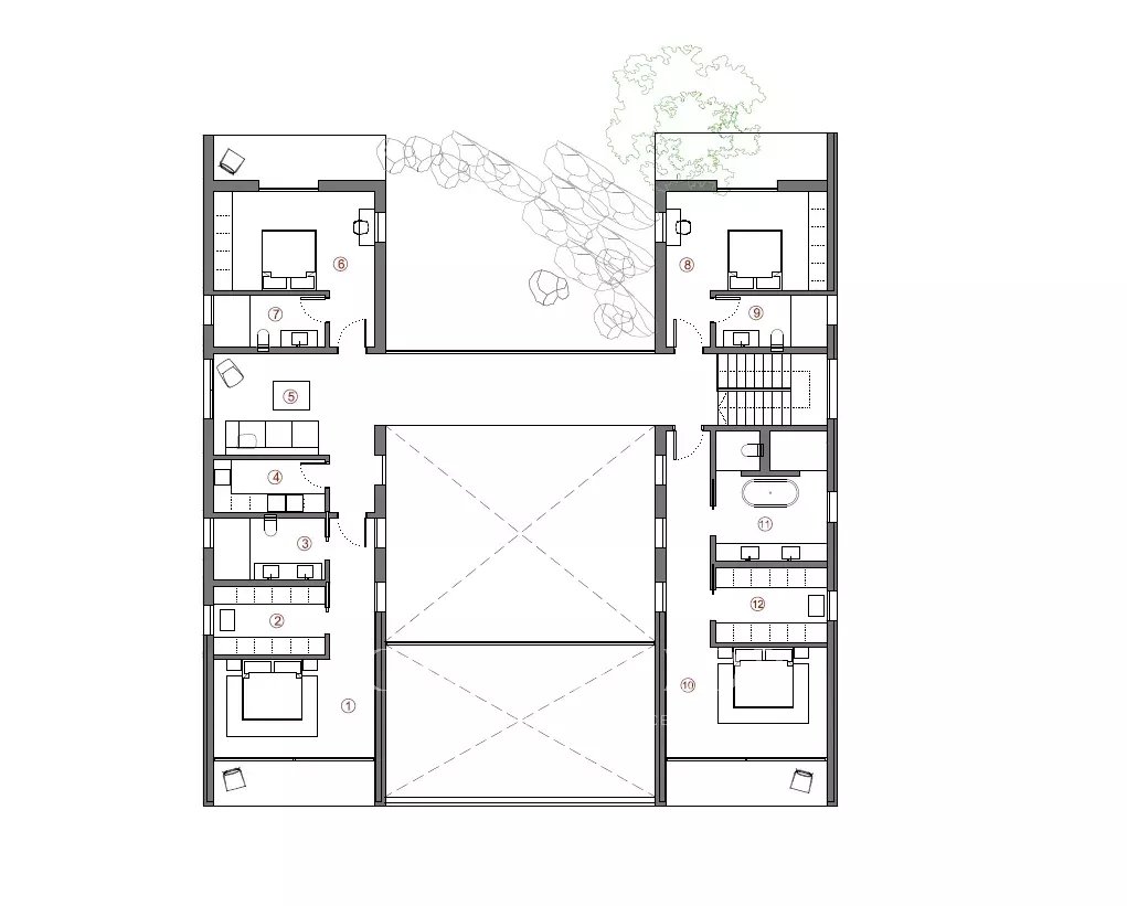
На верхнем этаже расположены 4 спальни, все с ванными комнатами, 2 из них - главные спальни с индивидуальными гардеробными, а также подсобное помещение и гараж.
Мы с удовольствием изучим вместе с вами планы этой недвижимости и предоставим контакты архитекторов, чтобы довести проект до совершенства, и вы смогли получить дом своей мечты на Майорке. Строительство дома может начаться немедленно.
Красивый район Кала Виньяс очаровывает многих людей своей кристально чистой голубой водой. Уютные рестораны и спа-салоны некоторых близлежащих отелей приглашают вас отдохнуть и расслабиться. Несмотря на спокойствие района, он находится всего в 8 км от знаменитой гавани "Порт Адриано", где вы сможете насладиться чистой роскошью и широким выбором ресторанов.

Ближайшие окрестности

  • Магазины
  • Пляж
  • Центр города
  • Парк
  • Супермаркет
  • Порт
  • Теннисный корт
  • Гольф-клуб
  • Аэропорт
  • Море
  • Платная скоростная дорога

престижное агентство недвижимости SANTA PONSA
  • Licencia Santa Ponsa Real Estate s.l.u.
    Gran Via Puig des Castellet 1 y 2, Bloque 4, Local 5
  • 07180 SANTA PONSA
  • Islas Baleares, ИСПАНИЯ

John Taylor
Онлайн запрос

* Связаться с агентом
Собранная информация необходима для обработки вашего запроса. В любое время вы имеете право доступа, изменения и удаления ваших данных.