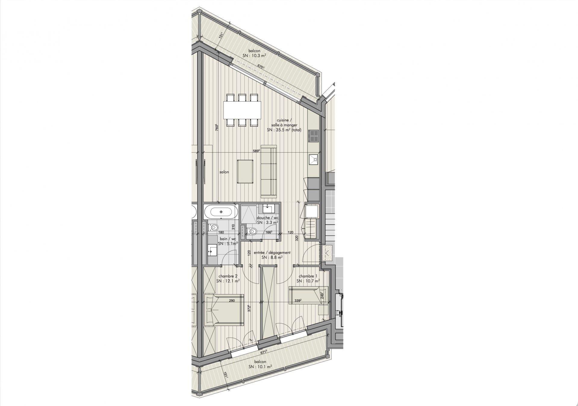
> домашняя > швейцария > продажа > квартира/апартаменты > швейцарские альпы > вале > нeндaц
Ближайшие окрестности