• Участок земли продается Restelo, Лиссабон, Португалия
    2 995 000 EUR

6 Спальни6 Спальни7 Ванные комнаты7 Ванные комнатыГараж / ГаражаГараж

Земельный участок | 1.379 м² | Архитектурный проект для 2 домов | Рестело, Лиссабон

  • V0400LI
  • Продажа
  • Участок земли

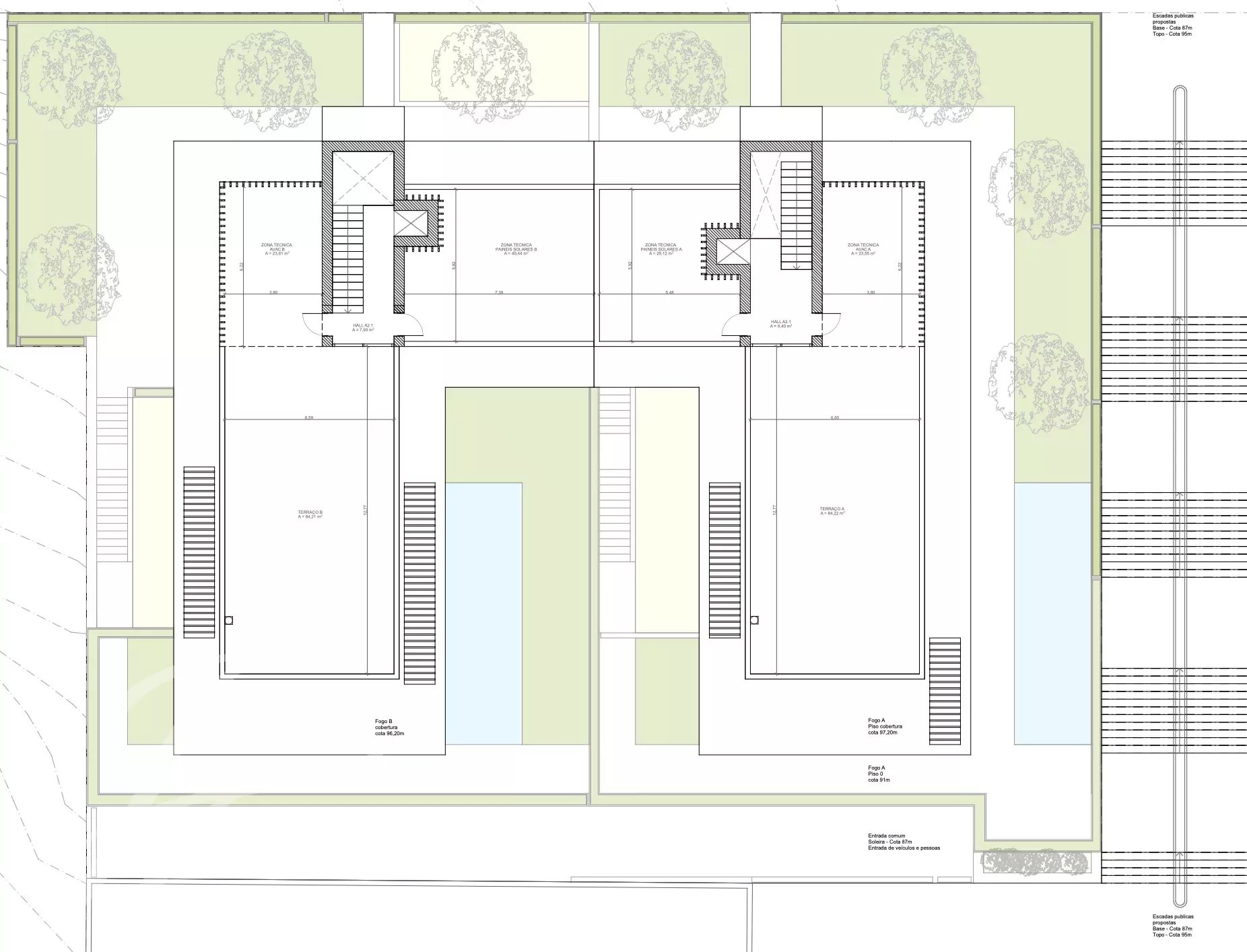
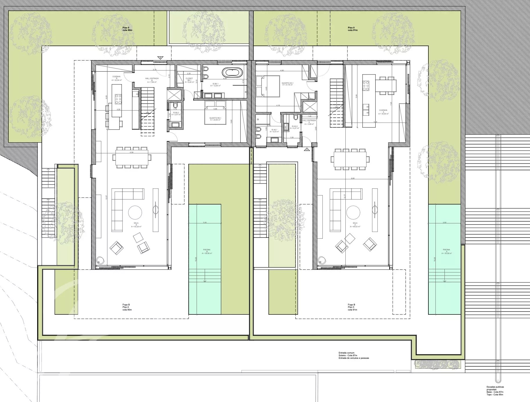
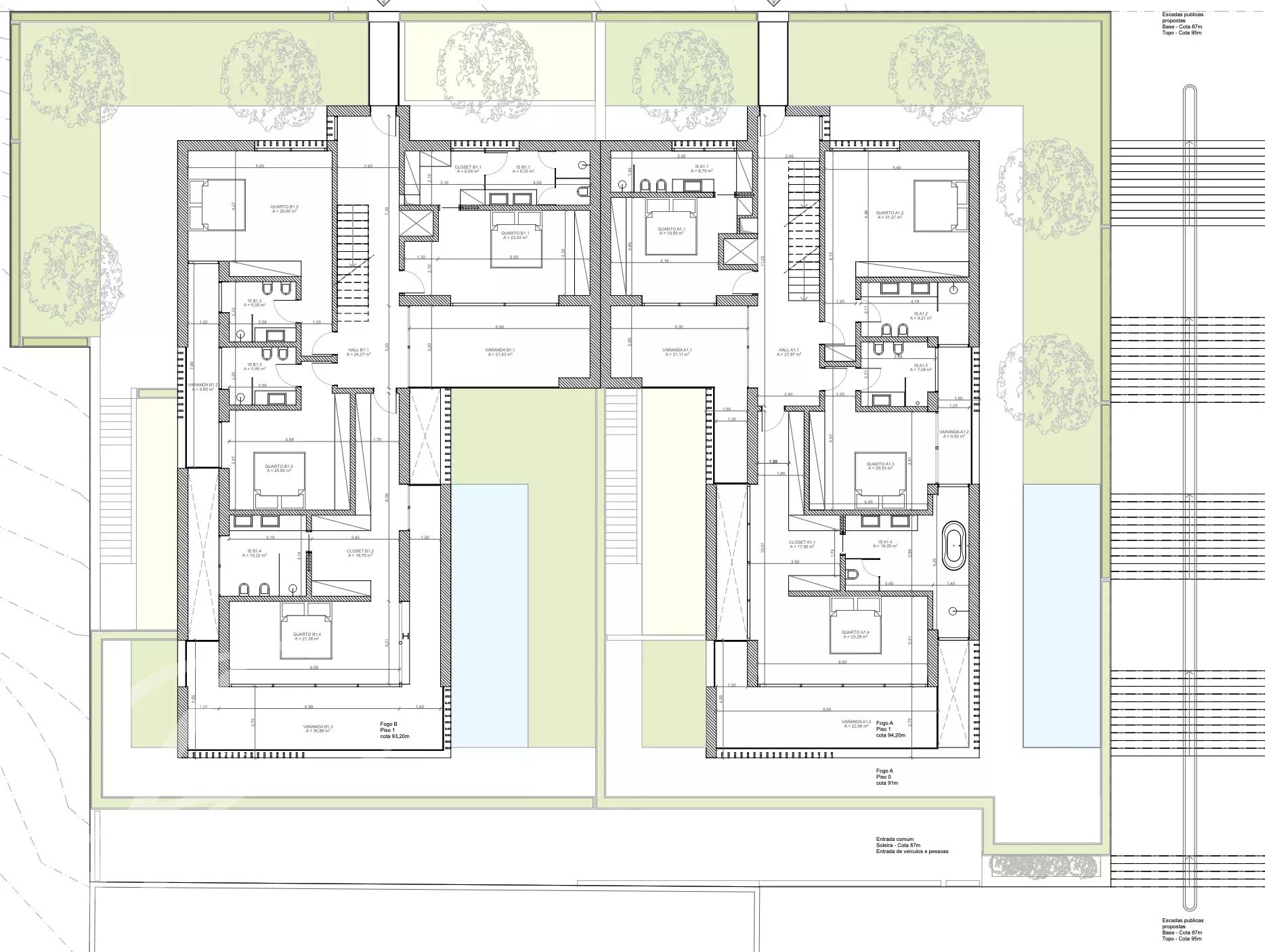
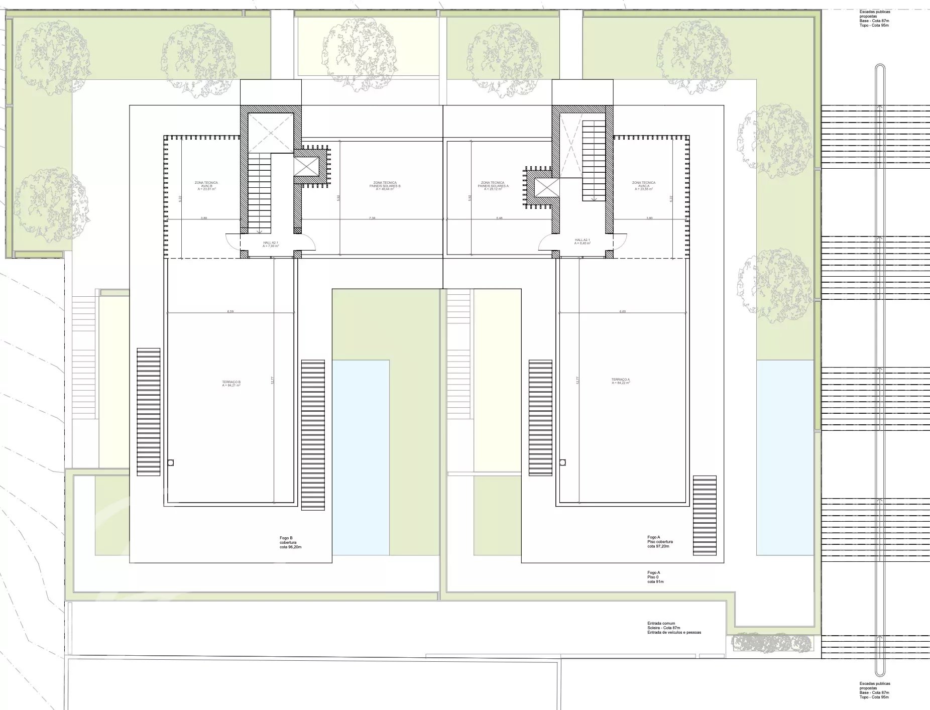
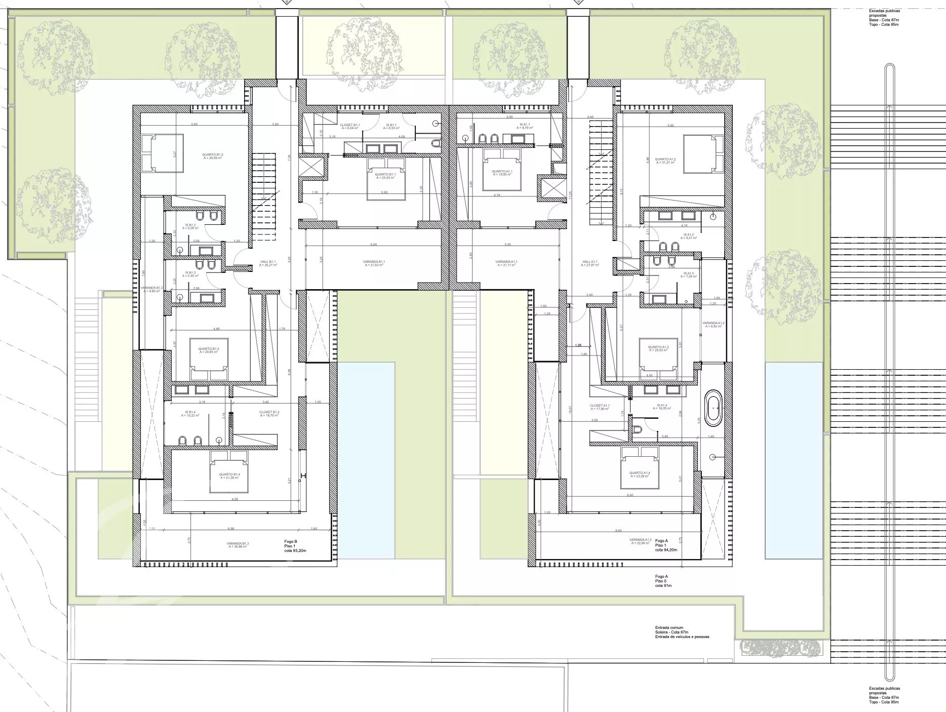
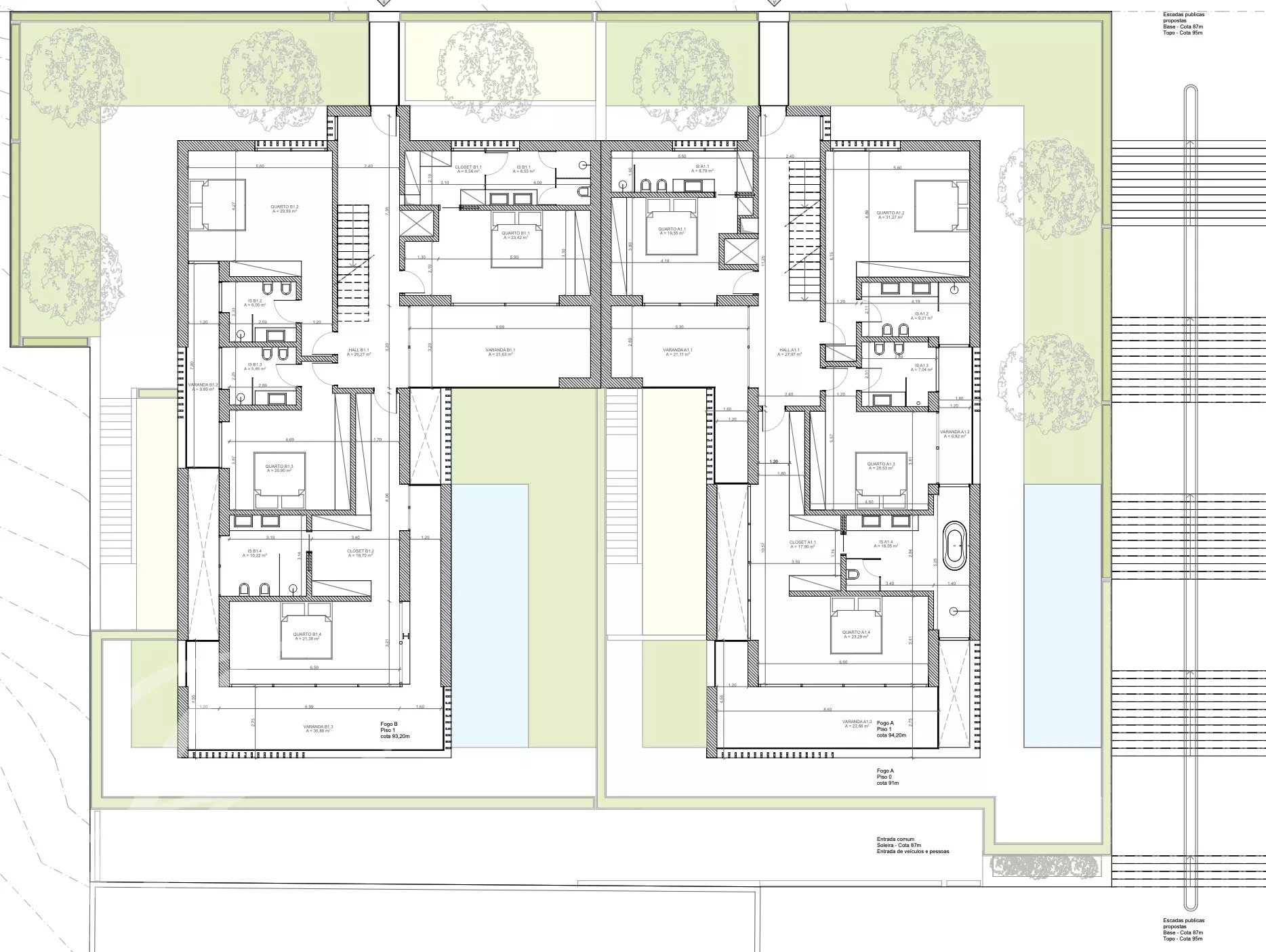
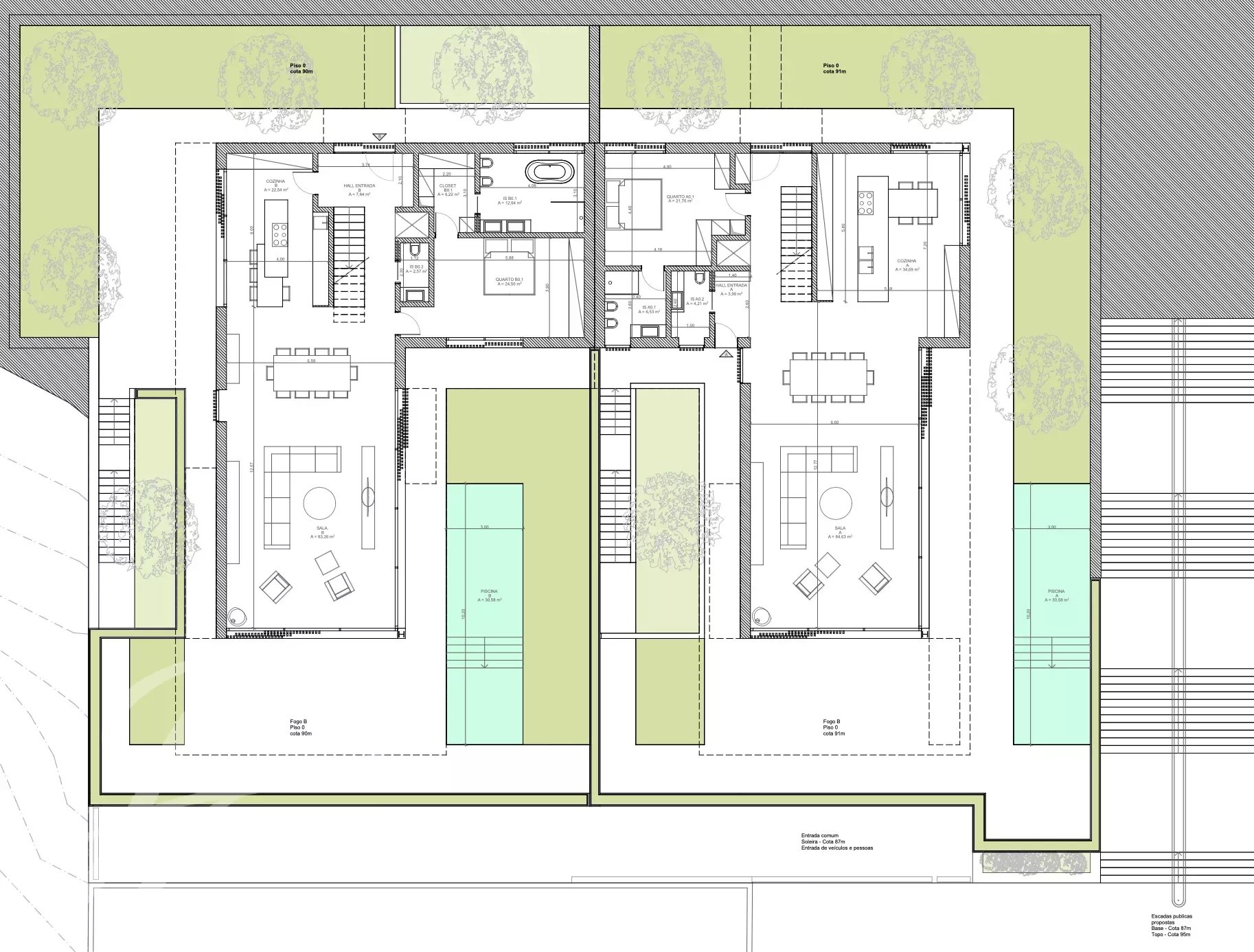
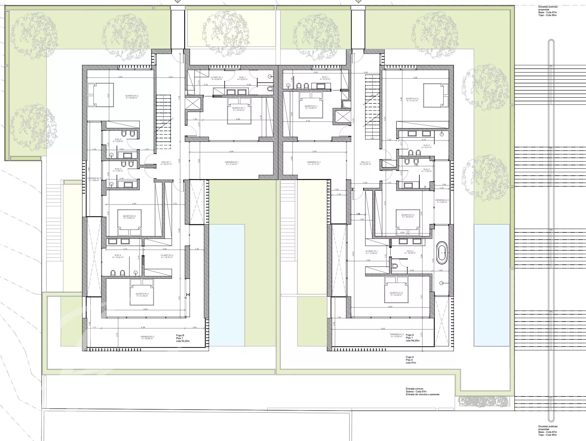
Участок площадью 1 379 м² с утвержденным архитектурным проектом, позволяющим построить один или два отдельно стоящих дома. В настоящее время утверждено решение о строительстве двух отдельно стоящих домов, что соответствует двум автономным объектам недвижимости на одном участке.

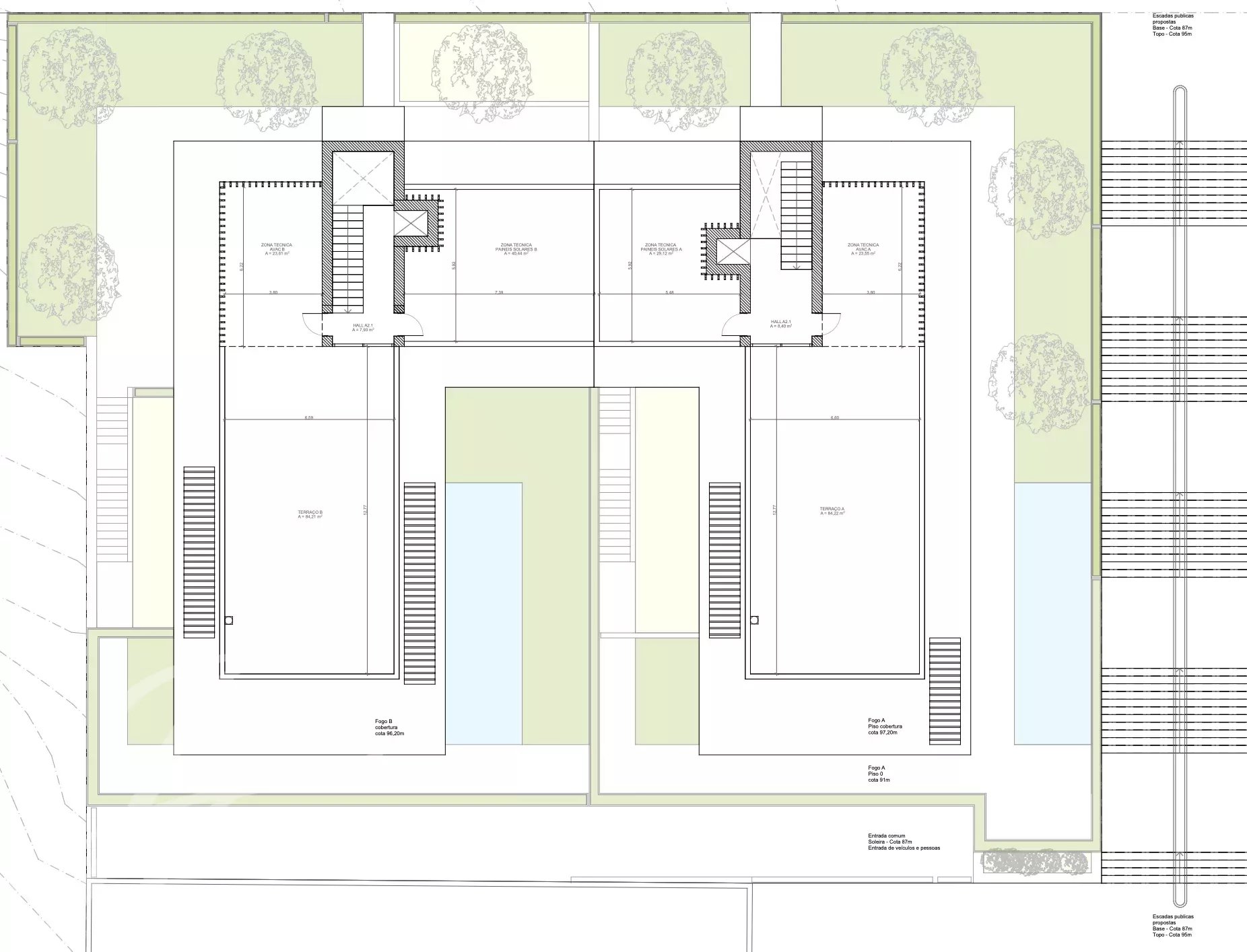
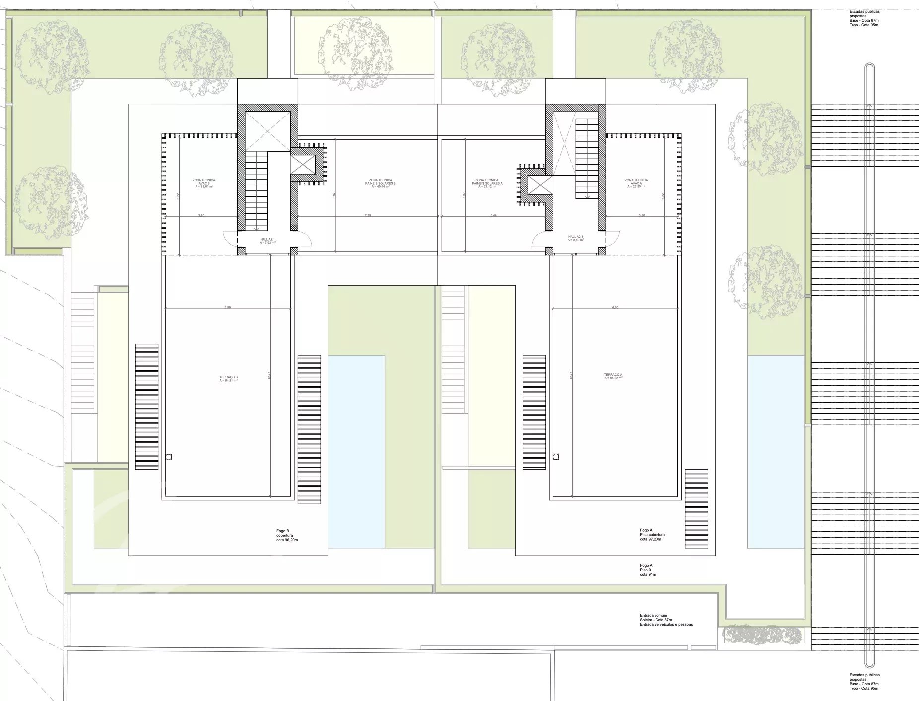
В соответствии с действующим разрешением, общая площадь застройки над землей в любом из вариантов составляет 965 м², а площадь застройки - 495 м², что делает этот участок уникальной возможностью для реализации эксклюзивного жилого проекта, как для собственного жилья, так и для инвестиций или застройки высокого уровня.

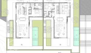
Несмотря на то, что виллы имеют общий пандус на цокольный этаж и пешеходный вход, каждый объект спроектирован таким образом, чтобы обеспечить полную функциональную и жилую независимость, с частной парковкой на цокольном этаже, эксклюзивным садом, индивидуальным бассейном и полностью независимым доступом. Проект включает в себя цокольный этаж с гаражом на четыре машины, кладовой и сьютом с естественным освещением, просторные общественные зоны на первом этаже, частные спальни на верхнем этаже и террасу на крыше площадью 84 м², откуда открываются широкие, беспрепятственные виды.

Расположенный в самом сердце Рестело, одного из самых престижных жилых районов Лиссабона, этот дом находится в совершенно уникальном месте, в окружении садов, посольств и таких знаковых достопримечательностей, как башня Белен, монастырь иеронимитов и Фонд Шампалимо.

John Taylor - одна из старейших и наиболее престижных международных компаний по продаже элитной недвижимости, более 160 лет занимающаяся представлением исключительных объектов. В Португалии компания John Taylor работает в Лиссабоне, Кашкайше и Компорте, где работает опытная и высококвалифицированная команда, предоставляющая индивидуальные услуги, основанные на строгости, осмотрительности и глубоком знании рынка.

Для получения дополнительной информации об этом объекте или организации просмотра мы приглашаем вас связаться с компанией John Taylor Portugal. Мы будем рады предоставить вам профессиональное и специализированное обслуживание.

Ближайшие окрестности

  • Автобусная остановка
  • Автовокзал
  • Аэропорт
  • Больница/Поликлиника
  • Вокзал
  • Кинотеатр
  • Конференц-центр
  • Магазины
  • Море
  • Парк
  • Платная скоростная дорога
  • Пляж
  • Супермаркет
  • Теннисный корт
  • Трамвайная остановка
  • Университет
  • Центр города
  • Школа
  • Школа (начальная)
  • Ясли

престижное агентство недвижимости ЛИССАБОН
  • TMP REAL ESTATE LDA
    Rua da Lapa, 126
  • 1200-703 ЛИССАБОН
  • ПОРТУГАЛИЯ

John Taylor
Онлайн запрос

* Связаться с агентом
Собранная информация необходима для обработки вашего запроса. В любое время вы имеете право доступа, изменения и удаления ваших данных.