• Офис аренда Limassol, Лимассол, Кипр
    10 500 EUR / Месяц

Жилая площадь 235 m²235 m²Этаж 1/5Этаж 1/5ориентация South West South West Вид Панорамный Панорамный Cистема кондиционирования воздухаCистема кондиционирования воздуха

Офисные помещения премиум-класса в Меса Гейтония

  • L1288CY
  • Аренда
  • Офис

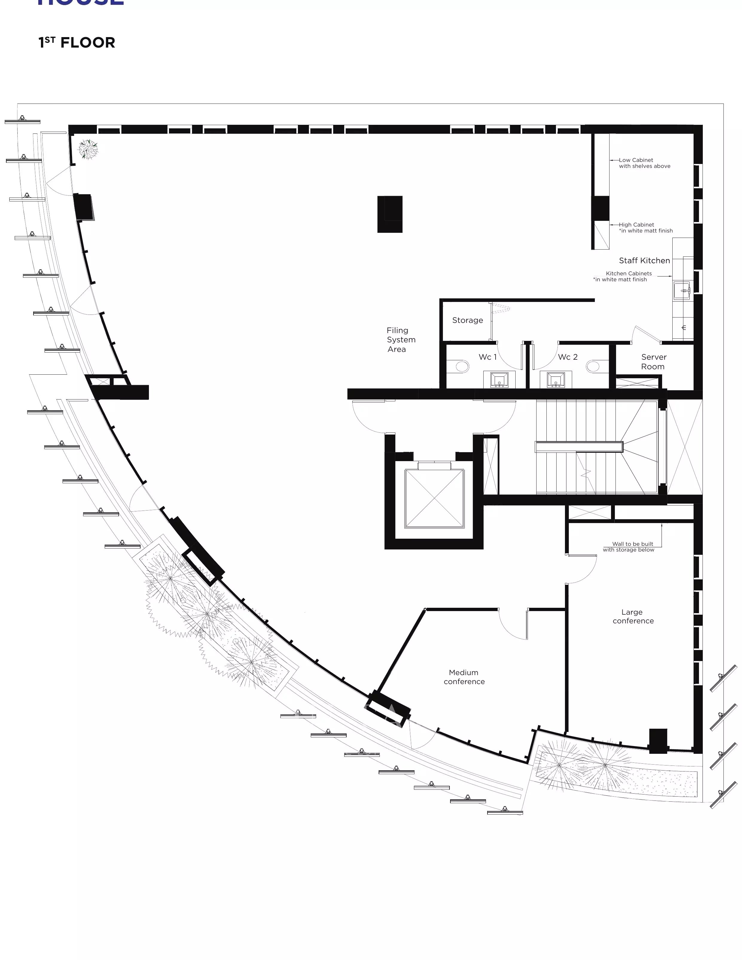
Этот офис расположен на первом этаже одного из самых экологичных и энергоэффективных офисных зданий Лимассола, спроектированного с целью значительного снижения потребления электроэнергии и общих эксплуатационных расходов. Концепция здания сфокусирована на устойчивости, энергоэффективности и долгосрочном управлении затратами, что позволяет арендаторам получать стабильные и более низкие расходы на электроэнергию по сравнению с обычными офисными зданиями.

Офис предлагает 235 кв. м чистой внутренней площади, при этом общая площадь составляет 255 кв. м, что обеспечивает эффективные и гибкие размеры рабочего пространства. Запрашиваемая ежемесячная арендная плата составляет €10 500 плюс НДС, что соответствует приблизительной арендной ставке €45 за кв.м. Эта цена отражает выгодное расположение здания, его экологичность и общее качество. Кроме того, ежемесячные общие расходы составляют 1 200 евро плюс НДС.

Офис будет доступен для аренды с 1 апреля 2026 года, минимальный срок аренды - три года. Необходимо внести залог в размере трехмесячной арендной платы.

Здание расположено в лучшем деловом районе Лимассола, откуда можно легко добраться до шоссе и центра города за несколько минут. В здании создана профессиональная атмосфера, включая роскошный вестибюль с персоналом на ресепшене, зоны контроля доступа и круглосуточное видеонаблюдение, что обеспечивает высокий уровень безопасности и сильное корпоративное присутствие.

Хотя мебель не включена в стоимость аренды, арендодатель может предоставить индивидуальные предложения по мебели, оборудованию и оснащению по запросу, что позволит оборудовать офис в соответствии с операционными потребностями арендатора.

Парковка включена в арендную плату, предоставляя два крытых парковочных места в подвале и два механических крытых парковочных места. Дополнительные парковочные места без покрытия могут быть организованы за дополнительную ежемесячную плату в размере 80 евро.

Дополнительная информация:
Для компаний, переезжающих в офис, есть возможность арендовать до четырех полностью меблированных квартир с тремя спальнями в нескольких минутах ходьбы от офиса. Квартиры расположены примерно в 850 метрах от здания и предлагаются по арендной ставке от €1 700 до €2 200 за квартиру в месяц, в зависимости от технических характеристик.

Reg. No: 1315 | Lic. No: 368/E

Ближайшие окрестности

  • Пляж
  • Центр города
  • Больница/Поликлиника
  • Супермаркет
  • Аэропорт
  • Море
  • Платная скоростная дорога

престижное агентство недвижимости КИПР
  • Christaki Kranou 1, Germasogeia
  • 4047 КИПР
  • Germasogeia, КИПР

John Taylor
Онлайн запрос

* Связаться с агентом
Собранная информация необходима для обработки вашего запроса. В любое время вы имеете право доступа, изменения и удаления ваших данных.