КУПИТЬ
ИСПАНИЯ
ANDALUSIA
CASTILE AND LEÓN
CATALONIA
COMUNIDAD VALENCIANA
GALICIA
IBIZA
MENORCA
МАДРИД
МАЙОРКА
ОКРЕСТНОСТИ МАДРИДА
ИТАЛИЯ
КОМО
МИЛАН
ТОСКАНА
КАРИБСКИЙ БАССЕЙН
КИПР
ЛИМАССОЛ
НИКОСИЯ
ПАФОС
ФАМАГУСТА
КНЯЖЕСТВО МОНАКО
CARRÉ D'OR
FONTVIEILLE
JARDIN EXOTIQUE
LA CONDAMINE
LARVOTTO
MONTE-CARLO
МАРОККО
ESSAOUIRA
MARRAKECH
TANGER
ОАЭ
ПОРТУГАЛИЯ
CASCAIS
COMPORTA
ЛИССАБОН
США
НЬЮ-ЙОРК
САУТ-ФЛОРИДА
ФРАНЦИЯ
RHÔNE-ALPES
НОРМАНДИЯ
ПАРИЖ
ПРОВАНС
ФРАНЦУЗСКАЯ РИВЬЕРА
ФРАНЦУЗСКИЕ АЛЬПЫ
ЮГО-ЗАПАД
ШВЕЙЦАРИЯ
FRIBOURG
VAUD
ЖЕНЕВА
ШВЕЙЦАРСКИЕ АЛЬПЫ
АРЕНДА
ОТПУСК
ИСПАНИЯ
IBIZA
MENORCA
МАЙОРКА
КАРИБСКИЙ БАССЕЙН
ПОРТУГАЛИЯ
ФРАНЦИЯ
ПРОВАНС
ФРАНЦУЗСКАЯ РИВЬЕРА
ЮГО-ЗАПАД
ШВЕЙЦАРИЯ
СОБЫТИЕ
ФРАНЦИЯ
ДОЛГОСРОЧНЫЙ
ИСПАНИЯ
IBIZA
МАДРИД
МАЙОРКА
ОКРЕСТНОСТИ МАДРИДА
ИТАЛИЯ
КОМО
МИЛАН
ТОСКАНА
КАРИБСКИЙ БАССЕЙН
КИПР
КНЯЖЕСТВО МОНАКО
CARRÉ D'OR
MONEGHETTI
ОАЭ
ПОРТУГАЛИЯ
США
ФРАНЦИЯ
ПАРИЖ
ПРОВАНС
ФРАНЦУЗСКАЯ РИВЬЕРА
ЮГО-ЗАПАД
ШВЕЙЦАРИЯ
VAUD
ШВЕЙЦАРСКИЕ АЛЬПЫ
ОЦЕНКА
АГЕНТСТВА
АНДОРРА
ИСПАНИЯ
IBIZA
MADRID - CHAMBERI/CENTRO
MALLORCA - PALMA
MALLORCA - SANTA PONSA
МАДРИД - SALAMANCA
МАДРИД - ПОЗУЭЛО
МАДРИД - ЧАМАРТИН
МЕНОРКА
ИТАЛИЯ
МИЛАН
ТОСКАНА
КАРИБЫ
КИПР
Княжество Монако
МОРОККО
ОБЪЕДИНЕННЫЕ АРАБСКИЕ ЭМИРАТЫ
ПОРТУГАЛИЯ
КОМПОРТА
ЛИССАБОН
ФРАНЦИЯ
ALPILLES
BORDEAUX
CAP D'ANTIBES
CAP FERRET
DEAUVILLE
FAYENCE
LUBERON
LYON
MOUGINS
PYLA - ARCACHON
ВАЛЬБОНН
КАННЫ
МАРСЕЛЬ
МЕЖЕВ
ПАРИЖ И ОКРЕСТНОСТИ
ОКОЛО ПАРИЖА
ПАРИЖ
САН-ТРОПЕ
САНАРИ-СЮР-МЕР
СЕН-ЖАН-КАП-ФЕРРА
СЕНТ-ПОЛ-ДЕ-ВАНС
ЭКС-АН-ПРОВАНС
ШВЕЙЦАРИЯ
MONTREUX - NYON
SION
ВЕРБЬЕ
ГШТААД
ЖЕНЕВА
КРАН-МОНТАНА
ЛОЗАННА
УСЛУГИ
УПРАВЛЕНИЕ НЕДВИЖИМОСТЬЮ
НОВОСТРОЙКИ
ИСПАНИЯ
ANDALUSIA
CATALONIA
IBIZA
MENORCA
МАДРИД
МАЙОРКА
ОКРЕСТНОСТИ МАДРИДА
КИПР
ЛИМАССОЛ
НИКОСИЯ
ПАФОС
ПОРТУГАЛИЯ
COMPORTA
ЛИССАБОН
ФРАНЦИЯ
ШВЕЙЦАРИЯ
КОММЕРЦИЯ
ИСПАНИЯ
MENORCA
МАДРИД
ИТАЛИЯ
КАРИБСКИЙ БАССЕЙН
КИПР
КНЯЖЕСТВО МОНАКО
CARRÉ D'OR
FONTVIEILLE
LA CONDAMINE
MONEGHETTI
ФРАНЦИЯ
ПРОВАНС
ФРАНЦУЗСКАЯ РИВЬЕРА
ЮГО-ЗАПАД
ШВЕЙЦАРИЯ
LIFE CAPITAL
CAPITAL MARKETS
LUXURY CONCIERGE
О НАС
JOHN TAYLOR
ИСТОРИЯ
ИЗДАНИЯ
СТАТЬ ПРЕДСТАВИТЕЛЕМ
КАРЬЕРА
BLOG
PRESS REVIEW
ARTCURIAL GROUP
ARTCURIAL
ARQANA
NEWS
ПАРТНЕРЫ
COMPASS
CAMPER & NICHOLSONS
YACHTING
КУПИТЬ
АРЕНДА
ENG
FRA
ITA
ESP
DEU
RUS
CZE
PRT
EUR
GBP
USD
CHF
CZK
QAR
COL
SAR
MUR
AED
METRIC
IMPERIAL
назад
>
домашняя
>
последние продажи
продано
Заинтересованы в этом продукте Вы?
+34 971 598 800
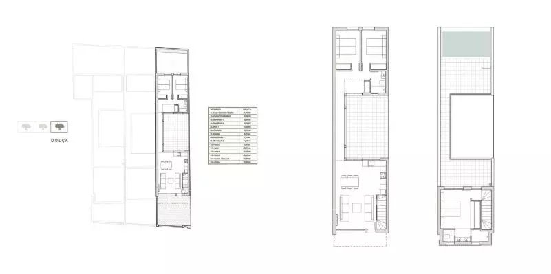
Таунхаус Пальма-Де-Майорка, Son Rapinya, Майорка
Менее 3 М €
240 m²
3 Спальни
113 m²
2 Ванные комнаты
South
Улица Внутренний двор Сад Город
Бассейн
Cистема кондиционирования воздуха
John Taylor Palma de Mallorca
Онлайн запрос
+34 971 598 800
Расположение на карте
JT Real Estate Palma SL
Carrer Constitució 8
07001
ПАЛЬМА-ДЕ-МАЙОРКА
Islas Baleares
,
ИСПАНИЯ
назад
Быстрые ссылки